6 augstas kvalitātes divstāvu mājas ar auto nojumi un mantu noliktavu

Ozolkalnu mājas Mārupē

Pārdošanā pieejamas pirmās 2 privātmājas,
kas atbilst augstākajiem energoefektivitātes rādītājiem.

Ozolkalnu Māja nr.1
Ozolkalnu Māja nr.2
Ozolkalnu Māja nr.3
Ozolkalnu Māja nr.3
Ozolkalnu Māja nr.3
Ozolkalnu Māja nr.3
Pieteikt vizīti

Statuss: PIEEJAMA REZERVĀCIJAI

EUR 320 000

(cena ar PVN, ar pilnu apdari)

Iekštelpas
101 Priekšnams 5.0 m2
102 Tualete un duša 3.1 m2
103 Virtuve un ēdamistaba 25.1 m2
104 Tehniskā telpa 3.4 m2
105 Dzīvojamā telpa 29.0 m2
Vasaras platības
107 Dārza noliktava 9.3 m2
108 Auto nojume 35.9 m2
109 Iekšpagalma terase 36.1 m2
Telpas
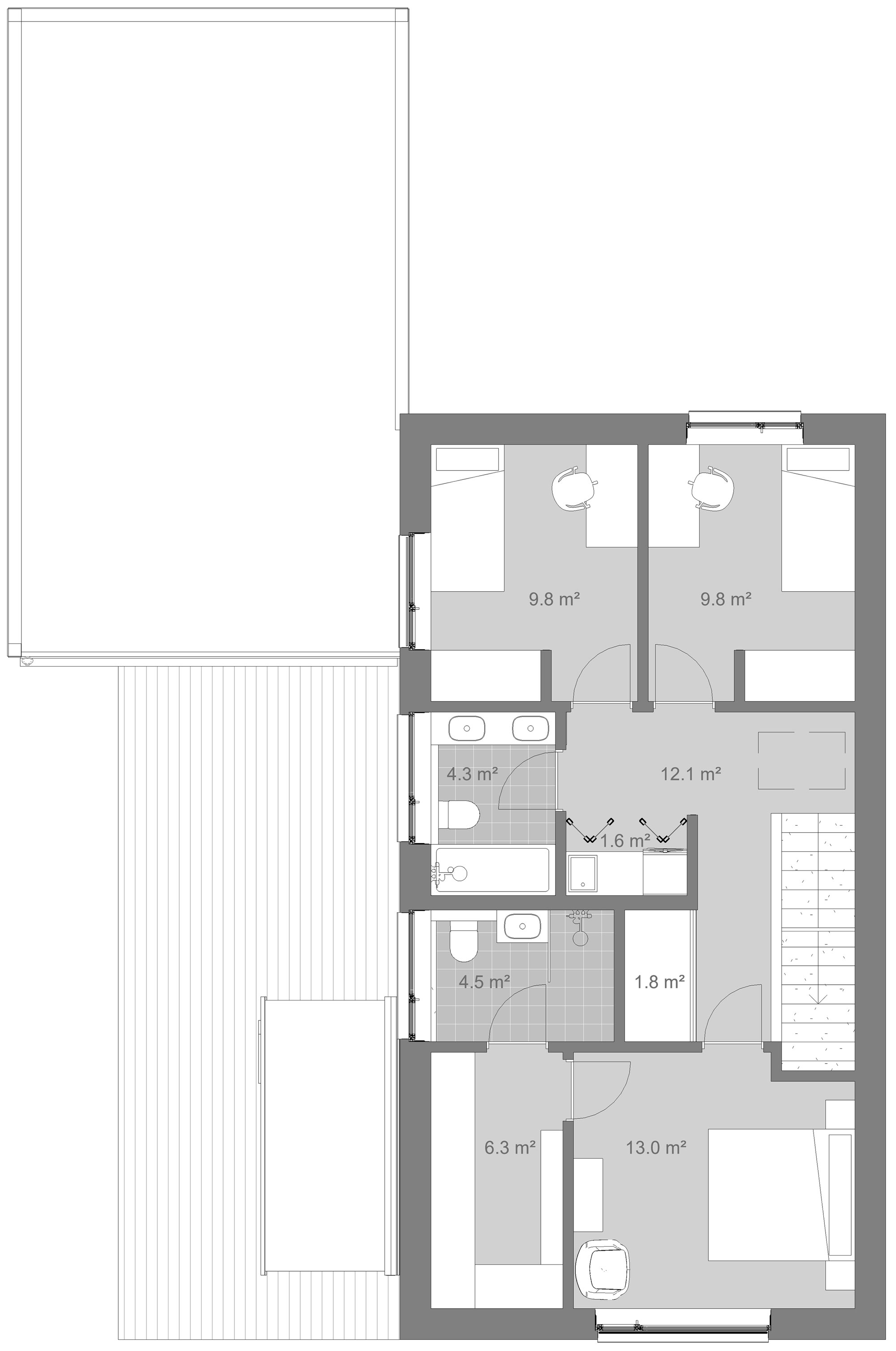
110 Kāpņu telpa 11.7 m2
111 Veļas mazgātava 1.6 m2
112 Koplietošanas vannas istaba 4.3 m2
113 Guļamistaba 9.8 m2
114 Guļamistaba 9.8 m2
115 Saimnieku vannas istaba 4.5 m2
116 Skapis 1.8 m2
117 Garderobe 6.3 m2
118 Saimnieku guļamistaba 13.4 m2
Vasaras platības
107 Dārza noliktava 9.3 m2
108 Auto nojume 35.9 m2
109 Iekšpagalma terase 36.1 m2

Lieliska lokācija

Ēka atrodas lieliskā lokācijā ar labu infrastruktūru un veido kopēju apbūves teritoriju ar blakus esošajiem kaimiņiem

Sabiedriskais transports

350 m

Sabiedriskais transports

Sabiedriskais transports

3 km

Mārupes vidusskola

Sabiedriskais transports

4 km

T/C Spice

Sabiedriskais transports

15 min

Rīgas centrs

Sabiedriskais transports

5 min

Lidosta Rīga

Passive House Institute

Zemas ekspluatācijas izmaksas

Ražotāja pieredze un projektā paredzētie risinājumi ļaus nodrošināt zemas ekspluatācijas izmaksas. Visas ēkas projektētas, balstoties uz “Passive House Institute” (Vācija) izstrādāto metodiku un ņemtas vērā pasīvās projektēšanas komponentes

Sabiedriskais transports

Izcila siltumizolācija

Sabiedriskais transports

blīvas norobežojošās konstrukcijas

Sabiedriskais transports

No termiskiem tiltiem brīvas konstrukcijas

Sabiedriskais transports

Ventilācija ar rekuperāciju

Sabiedriskais transports

Kvalitatīvi logi/durvis

Pārdomāts plānojums

Sabiedriskais transports

Iekštelpas

1. stāvā
Plaša un gaiša viesistaba ar virtuvi un izeju uz plašu āra terasi, sanmezgls ar duškabīni un saimniecības/tehniskā telpa
2. stāvā
3 guļamistabas (no kurām vienai plaša garderobes telpa un atsevišķs sanmezgls ar logu), sanmezgls ar vannu/duškabīni un telpa saimniecības vajadzībām
Sabiedriskais transports

Platība

Iekštelpas 128,7 m2
Terase 36,1 m2
Auto nojume 35,9 m2
Mantu glabātava “box” 9,3 m2
Zemes platība 916 m2
Sabiedriskais transports

Labiekārtots pagalms

Apstādījumi, automatizēti vārti, bruģēti celiņi, āra apgaismojums.

Galerija

Sazinies ar mums

Image Description

Maija Dzirkale

CMB Housing Solutions nekustamo īpašumu portfeļa menedžere

Zvani:

+371 26 227 672

Raksti uz e-pastu:

maija.dzirkale@cmb.lv

Uzdod jautājumu: